

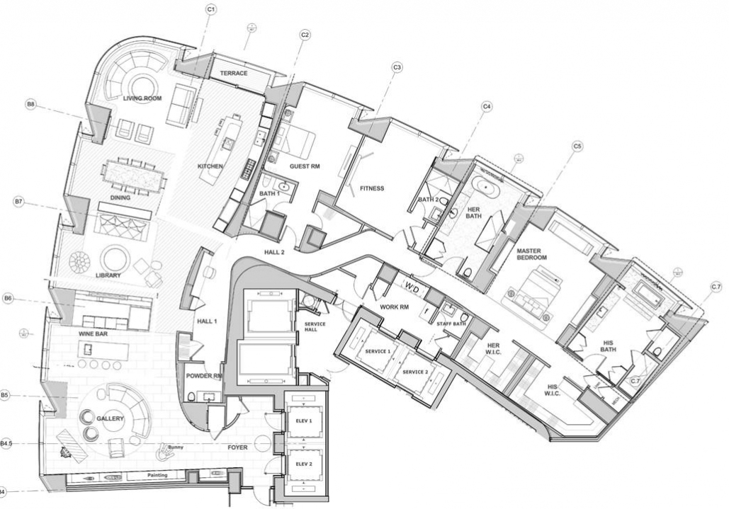
Four Seasons One Dalton street, Boston (US)
Ce projet de résidence privé concerne l'une des résidences privées au sein du projet Four Seasons Hôtel et résidences privées, One Dalton street à Boston, dessiné par l'architecte Henry N. Cobb en collaboration avec l'agence d'architecture Cambridge Seven. Le Four Season est la tour résidentielle la plus haute de Nouvelle Angleterre. Le projet à travers la richesse des matériaux révèlent et mets en valeur les vues surplompbant le paysage urbain bostonien.
Pour en savoir sur l'ensemble du projet Four Seasons, One Dalton Street à Boston: https://www.onedalton.com/
